8721 Fortuna Way, Fort Wayne, IN 46815
Toggle Navigation
Images
Floor Plans
Map
8721 Fortuna Way
Fort Wayne, IN 46815
Scroll to Content
Images
Slideshow
Photo Grid
Hide
Previous
Next
Show more
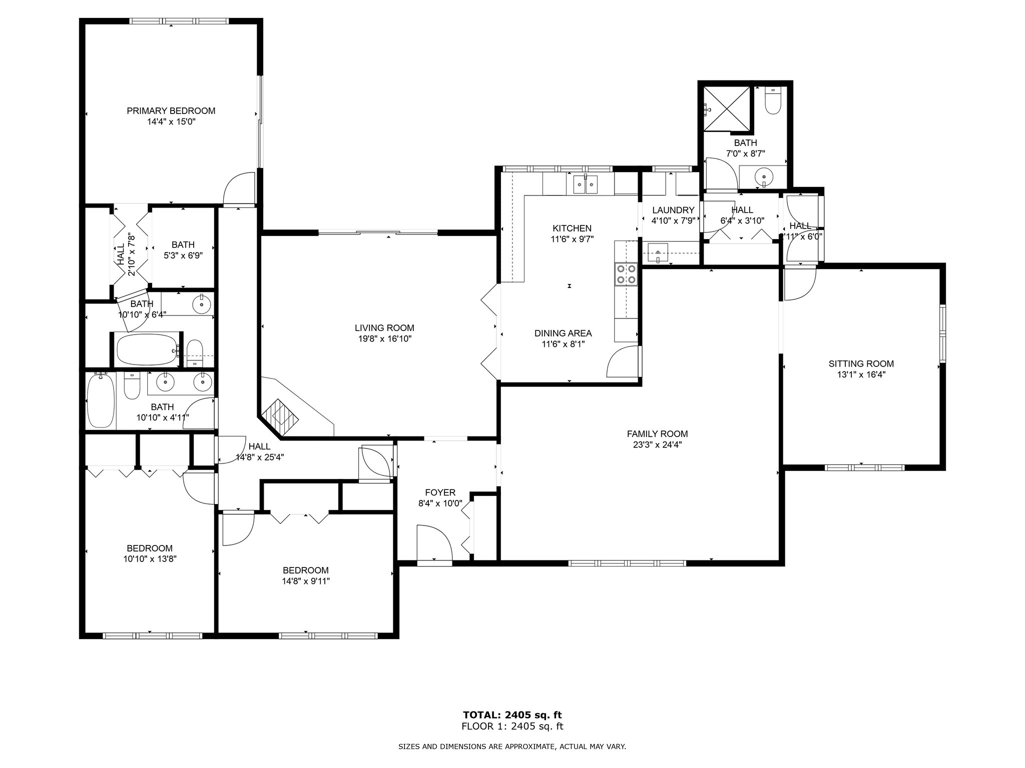
Floor Plans
Slideshow
Photo Grid
Hide
Previous
Next